En Venta
LOCALES A ESTRENAR EN VENTA
Código: 170361

A. Schweitzer 1573, B6513 9 de Julio, Provincia de Buenos Aires, Argentina, 9 De Julio, Buenos Aires, Argentina.

USD100.000

Local Comercial
Compartir esta Propiedad

Descripción de la Propiedad

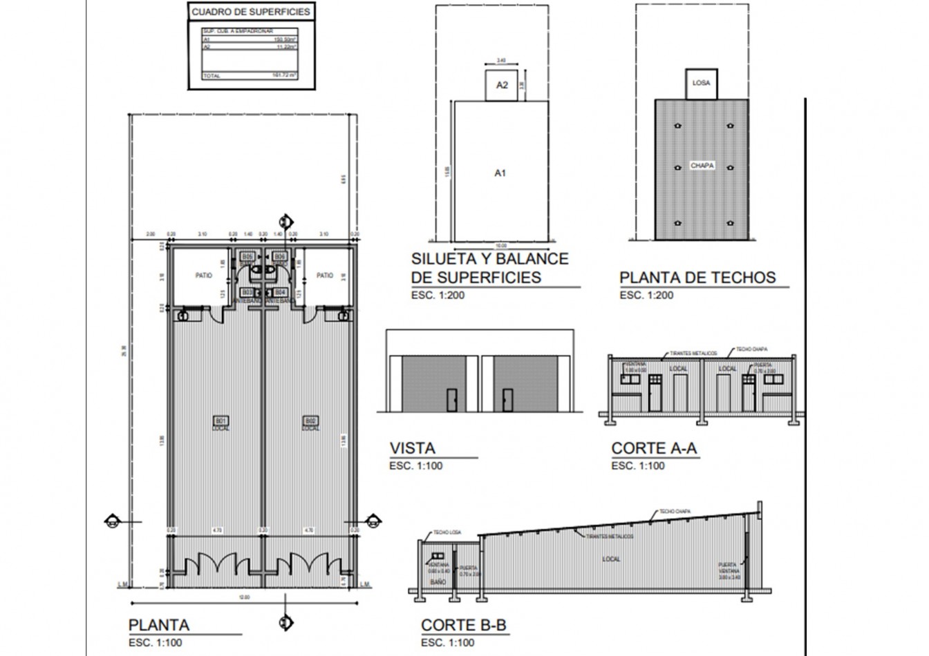
Venta de dos locales comerciales en conjunto ubicados sobre calle Schweitzer (pavimentada). Se venden en forma individual tambien

Mas detalles
  • Patio
  • Apto profesional
  • Alumbrado publico
  • Asfalto
  • Agua Corriente
  • Cloacas
  • Electricidad
  • Tendido Eléctrico
  • Red Gas Natural
  • Planos aprobados
  • Medidor Eléctrico Individual